非常感谢 PRODUCTORA 予gooood的分享。更多关于他们:PRODUCTORA on gooood
Appreciation towards PRODUCTORA for providing the following description:
该项目由国家住房基金研究所(INFONAVIT)与可持续发展中心(CIDS)共同发起,是一处位于图尔提特兰市Hogares Castera住宅区的公园。公园主结构为一个款15米,长200米的混凝土走廊,走廊上顺沿分布着各种各样的混凝土元素,元素采用了统一的色调,构成休闲空间。
The project, located in the Hogares Castera housing unit in the Municipality of Tultitlán, is an initiative made by INFONATIT and the CIDS (Centro de Investigación para el Desarrollo Sostenible). It mainly consists of a 15m wide by 200m long concrete corridor, along which various elements built in concrete with integral color that make up recreation spaces are grouped together.
▼Tultitlán公园鸟瞰,主结构为长条形走廊,bird-view of the park in Tultitlán, whose main structure is a long corridor ©Erick Mendez
第一组元素是一系列50x50cm的立方体。立方体分散在线性走廊上标识出公园的开端。随后,设计师在走廊上架起一座多功能三角亭。从这里开始,公园的娱乐功能更加丰富,设有旗杆的市民广场,可进行游戏的趣味三角墙,可攀爬亦可用作看台的条状几何体块,小型圆平台及一部分铺设在走廊上,一部分延伸进花园里的走道。走廊周围是茂密的植被,植被中设有多功能场地,可用作室外健身房和儿童游戏空间。
▼公园轴测图,axonometric drawing of the park ©Erick Mendez
The first of the elements is a set of 50x50cms cubes spread on the lineal corridor delimiting a meeting point. Succeeding, we find a multi-purpose triangular pavilion. More recreational elements complement the trajectory, such as: an element for civil events with a flagpole; a triangular-shaped walls game; a longitudinal element which functions as both a climbing device and a grandstand; a small circular platform; and a small platform that occupies part of the corridor’s surface and another of a garden attached to it. Surrounding the corridor is a wooded area with multipurpose courts, an outdoor gym and a series of children’s games are available.
▼公园入口处的混凝土方块,concrete blocks at the entrance ©Erick Mendez
▼多功能三角亭,multi-purpose triangular pavilion ©Erick Mendez
▼可进行游戏的三角墙,和可攀爬的几何体块,a triangular-shaped walls game; a longitudinal element which functions as climbing device ©Erick Mendez
▼一部分铺设在走廊上,一部分延伸进花园里的走道,small platform that occupies part of the corridor’s surface and another of a garden attached to it ©Erick Mendez
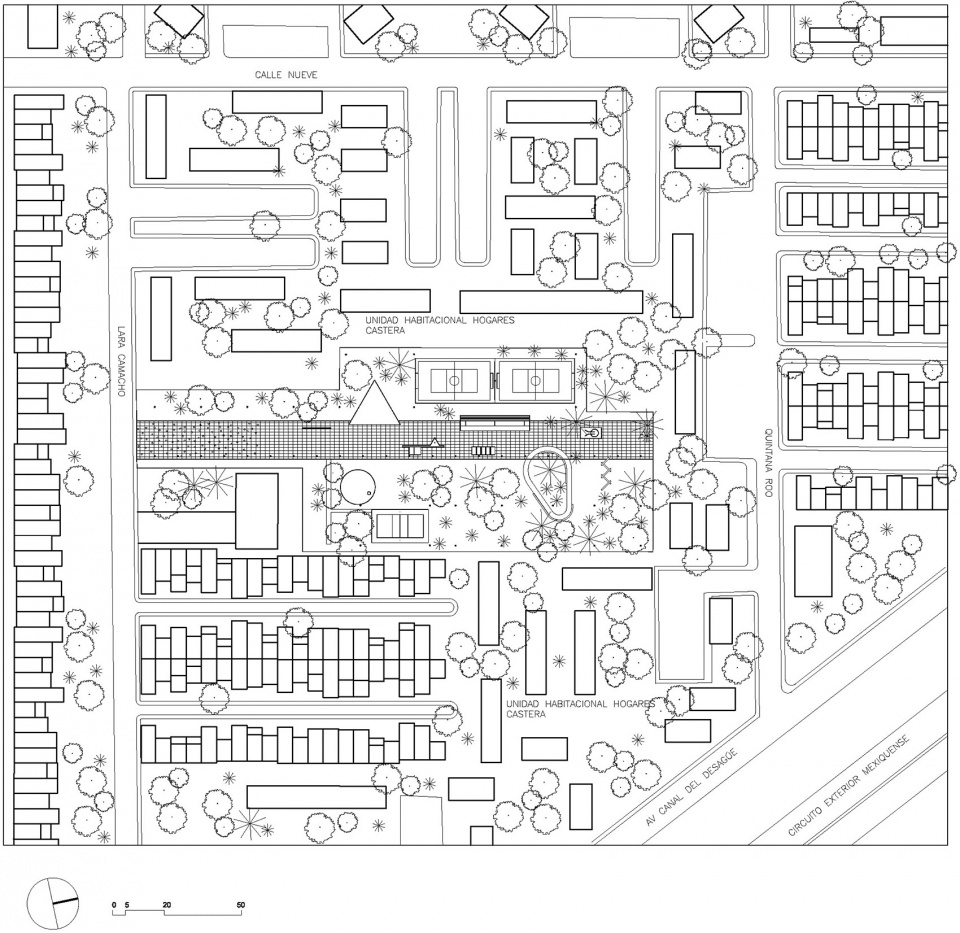
▼公园场地平面,site plan of the park ©PRODUCTORA
▼公园平面,plan of the park ©PRODUCTORA
Architectural Design: PRODUCTORA (Carlos Bedoya, Víctor Jaime, Wonne Ickx, Abel Perles)
Collaborators: Daniela Diaz, Natalia Echeverri, Alonso Sanchez, Diego Velazquez
Location: Unidad Habitacional Hogares Castera, Municipality of Tultitlán, State of Mexico
Typology: Public Infrastructure
Area: 9,800 m2
Client: INFONAVIT (Instituto del Fondo Nacional de la Vivienda)
Date: 2019
Photography: Erick Mendez
More: PRODUCTORA,更多关于他们:PRODUCTORA on gooood









