非常感谢 BIG 予gooood分享以下内容。更多关于他们: BIG on gooood.
Appreciation towards BIG for providing the following description:
MÉCA文化经济创意中心占地18000平方米,旨在为当代艺术、电影和表演提供展示的平台,同时也为波尔多创造了一个连接河岸与新城区的充满艺术气息的公共空间。MÉCA位于加伦河与Saint-Jean火车站之间的中央地带,以一个循环的体量汇聚了当地的三个重要艺术机构:致力于当代艺术的FRAC、致力于电影、文学和视听的ALCA以及致力于表演艺术的OARA。
The new 18,000 m2 Maison de l’Économie Créative et de la Culture en Aquitaine, MÉCA, creates a frame for the celebration of contemporary art, film and performances, giving Bordeaux the gift of art-filled public space from the waterfront to the city’s new urban room. Centrally located between the River Garonne and Saint-Jean train station, MÉCA, brings together three regional arts agencies – FRAC for contemporary art, ALCA for cinema, literature and audiovisuals, and OARA for performing arts – into a loop, cementing the UNESCO-listed city as the epicenter for culture.
▼鸟瞰图,aerial view ©Laurian Ghinitoiu
该建筑被构想为一个包含文化机构和公共空间的“环路”:首先,河滨步道以斜坡的形式过渡到作为“城市客厅”的广场区域, 随后与建筑立面融为一体(透过立面可以瞥见OARA的舞台空间以及ALCA的办公区),最后在FRAC展厅的屋顶天窗处形成闭合。
The building is conceived as a single loop of cultural institutions and public space by extruding the pavement of the promenade to become the ramp that leads into the urban living room, the façade with glimpses into the stage towers of OARA and the offices of ALCA, and the rooftop enclosing the sky-lit galleries of FRAC.
▼设计示意图:循环的体量汇聚了FRAC、ALCA以及OARA三个独立的当地艺术机构,并在中央创建了一个新的“城市客厅”,以促进公众的参与,尽可能地增强建筑的开放性。©BIG
一系列台阶和坡道将公众直接引导至位于MÉCA中央的1100平方米的户外公共空间,使来访者能够在Quai de Paludate大街与河滨步道之间自由地漫步。7米高的MÉCA标牌通过白色LED等照亮了该区域,犹如一盏具有城市尺度的、充满现代感的吊灯。在特殊的场合,MÉCA的户外空间可以被用于举办音乐会和戏剧表演,也可以作为画廊的延伸部分来容纳雕塑和各类艺术装置。朝向河岸的入口处伫立着由法国艺术家Benoît Maire创作的赫耳墨斯青铜雕像,促使人们对该地区的当代文化进行思考。
▼原始体块,basic volume on site ©BIG
▼连续的线性河滨步道,continuity of the linear promenade ©BIG
▼贯穿建筑的公共路径,public passage through the building ©BIG
▼鸟瞰城市全景的屋顶露台,panoramic roof terrace overlooking Bordeaux ©BIG
▼充满艺术的城市空间,art-filled urban room for the public ©BIG
▼可栖居的文化中心,inhabitable landscape as the epicenter for culture ©BIG
A series of steps and ramps lead the public directly into the 1,100 m2 outdoor urban room at the core of MÉCA, creating a porous institution for visitors to roam freely between the Quai de Paludate street to the river promenade. A 7m high MÉCA sign illuminates the space with white LED lights, like a modern chandelier at the scale of the urban room. During special occasions, MÉCA’s outdoor spaces can be transformed into a stage for concerts and theatrical spectacles or an extended gallery for sculptures and other art installations. A permanent bronze sculpture depicting a half-head of Hermes by French artist Benoît Maire intersects with the entrance on the riverside, inviting visitors to reflect on the contemporary culture of the region.
▼台阶和坡道将公众引至中央的户外公共空间,a series of steps and ramps lead the public directly into the outdoor urban room ©Laurian Ghinitoiu
▼7米高的MÉCA标牌犹如一盏具有城市尺度的吊灯,a 7m high MÉCA sign illuminates the space with white LED lights, like a modern chandelier at the scale of the urban room ©Laurian Ghinitoiu
▼“城市客厅”,urban living room ©Laurian Ghinitoiu
▼朝向河岸的入口处伫立着赫耳墨斯青铜雕像,a permanent bronze sculpture depicting a half-head of Hermes intersects with the entrance on the riverside ©Laurian Ghinitoiu
▼“城市客厅”夜景,urban living room by night ©Laurian Ghinitoiu
从首层进入MÉCA之后,来访者将到达大厅区域。人们可以在螺旋形的下沉空间中就坐休息,或者在Le CREM餐厅享受美食。餐厅中的红色家具和软木座椅是由BIG以城市的葡萄酒文化为灵感而设计。餐厅和电梯为参观者提供了一个巨大的“潜望镜”,使其能够看到户外“城市客厅”里的活动,同时也在室内和室外空间之间建立了对话。
Upon entering MÉCA from the ground floor, visitors arrive at the lobby where they can relax in the spiral pit or dine at the restaurant Le CREM, furnished with red furniture and cork chairs designed by BIG in reference to the city known for wine. A giant periscope by the restaurant and elevators allows visitors to see the activity in the outdoor urban room and vise-versa, creating an indoor-outdoor dialogue.
▼大厅螺旋形的下沉空间,the spiral pit in the lobby ©Laurian Ghinitoiu
▼Le CREM餐厅,Le CREM restaurant ©Florent Michel Hires
▼室内和室外形成对话,an indoor-outdoor dialogue ©Laurian Ghinitoiu
▼从建筑内望向城市客厅,view to the outdoor living room from interior ©Laurian Ghinitoiu
▼展厅空间,exhibition space ©Laurian Ghinitoiu
▼休息室,lounge ©Laurian Ghinitoiu
同样在建筑首层,参观者可以买票进入OARA的剧场以欣赏表演。剧场可容纳250位观众,设有灵活的座椅和声学系统,并搭配由混凝土、木材和穿孔金属板构成的黑色棋盘格墙面。上方的楼层包含了ALCA的电影院,红色调的空间包含了80个座位。同层还设有两个制片办公室和项目策划区域。
On the same ground floor, those with tickets can enjoy performances in OARA’s 250-seat theatre featuring flexible seating configurations and acoustic systems optimized by an all-black checkerboard panel of concrete, wood and perforated metal. Upstairs, filmgoers can view screenings at ALCA’s red-accented 80-seat cinema or visit the two production offices and project incubation area.
▼OARA剧场空间,OARA’s theatre ©Laurian Ghinitoiu
FRAC位于建筑顶部,拥有7米高的展厅空间,同时还提供艺术家工作室、储物空间、包含90个座位的礼堂以及咖啡厅等。850平方米的公共屋顶平台为展览空间提供了灵活的延伸,可以在需要时用于展示大型艺术装置或举办表演,同时为参观者带来了欣赏城市和St. Michael大教堂的视野。
FRAC occupies the upper floors with 7m high exhibition spaces, production studios for artists, storage facilities, 90-seat auditorium and café. The 850㎡public roof terrace serves as a flexible extension to the exhibition spaces, allowing future large-scale art installations and performances to be placed outdoors amid views of the city and the Basilica of St. Michael.
▼公共屋顶平台为展览空间提供了灵活的延伸,the public roof terrace serves as a flexible extension to the exhibition spaces ©Laurian Ghinitoiu
MÉCA的立面几乎完全由(4800块)预制混凝土板覆盖,不同尺寸的窗户在控制光照量的同时为建筑赋予了透明感。重量达1.6吨的混凝土板表面经过了喷砂处理,以展示出材料原始的质感以及与波尔多本土砂岩相呼应的纹理。立面的黄色颗粒在阳光下产生一种温暖明亮的观感,使MÉCA成为城市中的一个崭新而又熟悉的存在。
MÉCA’s façade is composed almost entirely of 4,800 prefabricated concrete panels interspersed with windows of various sizes to control the amount of light entering inside and to create a sense of transparency. The concrete slabs, which weigh up to 1.6 tons, are sandblasted to expose its raw qualities and to texture the surface with the local sandstone of Bordeaux. Yellow granules for brightness and warmth radiate the building in the sun and integrates MÉCA as a familiar yet new vernacular sight to the city.
▼建筑立面由预制混凝土板覆盖,MÉCA’s façade is composed almost entirely of 4,800 prefabricated concrete panels ©Laurian Ghinitoiu
▼河岸视角,view from the riverfront ©Laurian Ghinitoiu
▼场地平面图,site plan ©BIG
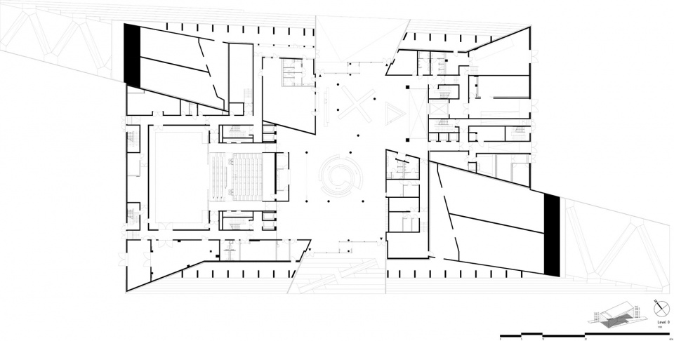
▼首层平面图,ground floor plan ©BIG
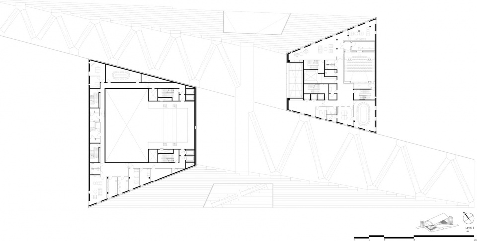
▼二层平面图,first floor plan ©BIG
▼七层平面图,sixth floor plan ©BIG
▼屋顶平面图,roof plan ©BIG
▼北立面图,north facade ©BIG
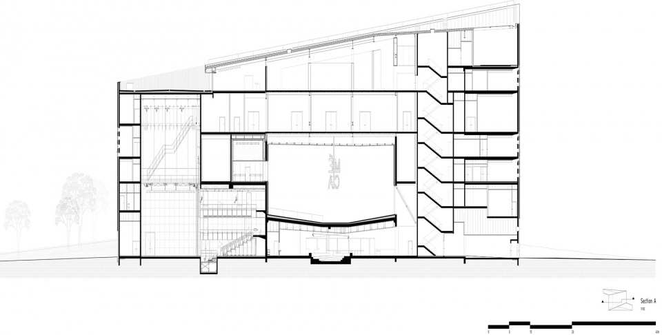
▼剖面图A,section A ©BIG
▼剖面图B,section B ©BIG
PROJECT DATA
Name: MÉCA
Code: MECA
Date: 28/06/2019
Program: Culture
Status: Completed
Size in m2: 18000
Project type: Competition
Client: Région Nouvelle-Aquitaine
Collaborators: FREAKS freearchitects, Lafourcade-Rouquette Architectes, ALTO Ingénierie, Khephren Ingénierie, Hedont, dUCKS Scéno, Dr. Lüchinger+Meyer Bauingenieure, VPEAS, Ph.A Lumière, ABM Studio, Mryk & Moriceau, BIG Ideas
Location Text: Bordeaux, France
Location: (44.8286616,-0.5514375999999857)
PROJECT TEAM
Partners-in-Charge: Bjarke Ingels, Jakob Sand, Finn Nørkjær, Andreas Klok Pedersen
Project Manager: Laurent de Carnière, Marie Lancon, Gabrielle Nadeau
Team: Alexander Codda, Alicia Marie Sarah Borhardt, Annette Birthe Jensen, Åsmund Skeie, Aya Fibert, Bartosz Kobylakiewicz, Bernhard Touzet, Brigitta Gulyás, David Tao, Edouard Champelle, Espen Vik, Greta Krenciute, Greta Tafel, Hyojin Lee, Ivan Genov, Jan Magasanik, Jeffrey Mark Mikolajewski, Karol Bogdan Borkowski, Katarzyna Swiderska, Kekoa Charlot, Lorenzo Boddi, Maria Teresa Fernandez Rojo, Melissa Andres, Michael Schønemann Jensen, Nicolas Millot, Ola Hariri, Ole Dau Mortensen, Pascale Julien, Paul-Antoine Lucas, Raphael Ciriani, Santiago Palacio Villa, Se Hyeon Kim, Sebastian Liszka, Seunghan Yeum, Snorre Emanuel Nash Jørgensen, Teresa Fernández, Thiago De Almeida, Thomas Jakobsen Randbøll, Yang Du, Zoltan David Kalaszi, Tore Banke, Yehezkiel Wiliardy
More:BIG。更多关于他们: BIG on gooood










































