感谢 BIG 予gooood分享以下内容。更多关于: BIG on gooood
Appreciation towards BIG for providing the following description:
AARhus住宅综合体位于奥胡斯Ø新城区Ø4人造岛的端点。项目的位置在海湾与港口、城市与自然之间,因而享有独特的双重景观。
▼项目概览,project overview
▼海湾与港口、城市与自然之间,the intersection between bay and harbor, city and nature
AARhus is located at the tip of the manmade island Ø4, in the new urban development of Aarhus Ø. The development sits at the intersection between bay and harbor, city and nature – offering spectacular views of both.
▼场地:建筑位于 Ø4人造岛的端点,三面环海。
▼基于人造岛的场地限制条件,建筑的外围结构拥有4个不同高度的顶点
▼通过切割和抽出的方法,外围结构的内部形成一个中央庭院
▼宽敞的屋顶平台、连续的阳台、绿色庭院以及视野极佳的公寓共同创造出理想的生活模式,同时为港口和城市的天际线增添了活力
BIG的设计方案将奥胡斯既有城市体块中最主要的建筑类型融合在一起,最终形成一个兼具了庭院建筑、连排住宅和塔楼特征的项目。建筑的每个角落都拥有不同的高度:阶梯式的屋顶景观创造出宽敞的私人露台,为不同的楼层带来户外活动空间。
BIG proposes to mix the most dominant typologies of the existing urban mass in Aarhus city, blending courtyard buildings, row houses and towers all in one building. Each corner of the building peaks at various heights: a stepped roofscape creates large private terraces for outdoor activities at different levels.
▼一个兼具了庭院建筑、连排住宅和塔楼特征的项目,AARhus blends courtyard buildings, row houses and towers all in one building
连续的阳台环绕在建筑外沿,作为抬升的户外空间的延伸。一些更小的阳台朝向内部庭院,为每个居住单元提供了充足的户外空间。庭院作为AARhus的绿色中心,为居民们提供了可以种植蔬菜和果树的共享花园,需要时还可以作为举办社区露天宴会的场地。
▼阶梯状的屋顶平台带来了完美的户外空间,并且可以从所有的屋顶住宅直接进入
As an extension of the elevated outdoor space a continuous balcony wraps around the building – only to be punctuated by smaller balconies inside the courtyard that offer ample outdoor space for all residential units. The courtyard, the green heart of AARhus, offers a shared garden for all residents to grow vegetables, fruit trees and host outdoor community dinners.
▼屋顶平台鸟瞰,aerial view to the roof terraces
▼更小的阳台朝向内部庭院,smaller balconies inside the courtyard offer ample outdoor space for all residential units
▼阳台景观,balcony
▼阳台细部,balcony detailed view
在街道层,建筑为私人的沿海休闲区以及商业区提供了一系列独特的功能空间,支持着城市的蓬勃发展。东北侧的双层住宅朝向水面,可以直接通向游泳池区域。
▼双层住宅和沿海商业空间位于底层的外围,为附近的街道景观赋予了活跃的氛围
▼建筑从二层起是住宅单元,均享有优越的采光条件,以及朝向海面、港口和城市的壮观视野
At street level, the building offers various distinct functions of space for both private owned maritime leisure units and commercial use to support the city’s burgeoning redevelopment. Towards north-east two story canal-houses face the water, allowing direct access for a walk or a swim.
▼临街立面,street view
▼海景阳台,balcony facing the water
建筑的西南角是共享的社区空间,通过前方的宽阔露台与城市空间相连接。这一多功能的空间在街道上创造了一个活跃的立面,同时将停车场隐藏在建筑的中央基座内。
▼停车场被隐藏在中央基座的前两层以及地下一层,拥有极高的便捷度
At the south-west corner a shared community space bleeds into the urban space with a large terrace in front. This multi-use space creates a lively façade towards the surrounding streets, while simultaneously covering the parking areas hidden at the central plinth of the building.
▼庭院内景,inner courtyard
▼朝向庭院的立面,facade view from the courtyard
▼住宅单元内部,the residential units
从本质上看,AARhus项目充分尊重并融入了丹麦第二大城市的建筑环境,同时也为港口和城市的天际线注入了新的活力。
At its essence, AARhus embraces the existing architectural legacy of Denmark’s second largest city, while also signaling a dynamic addition to the skyline of the harbor and the city.
▼从BIG设计的奥胡斯海滨浴场望向AARhus综合体,view to the AARhus from the Aarhus Harbor Bath by BIG
▼港口概览,harbor view
▼屋顶平面图,roof plan
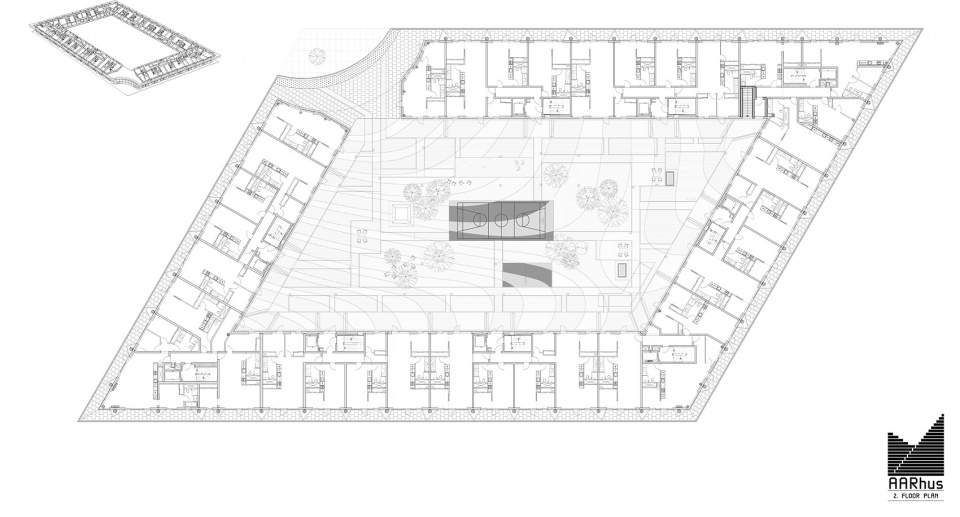
▼三层平面图,2nd floor plan
▼十一层平面图,10th floor plan
▼东北立面图,facade northeast
▼西南立面图,facade southwest
▼剖面图AA,section AA
PROJECT DATA
Name: AARHUS
Code: AAR
Date: 24/06/2019
Program: Housing
Status: Completed
Size in m2: 26500
Project type: Competition
Client: Kilden & Mortensen APS
Collaborators: MT Højgaard, MOE, BIG Landscape, 1:1 Landskab
Location Text: Aarhus, Denmark
Location: (56.16517523324513,10.231240606013671)
PROJECT TEAM
Partners in Charge : Bjarke Ingels, Finn Nørkjær, Andreas Klok Pedersen
Project Leader: Søren Martinussen
Project Manager: Ali Arvanaghi, Jesper Bo Jensen
Team: Agne Rapkeviciute, Aaron Hales, Agne Tamasauskaite, Alberte Danvig, Aleksander Wadas, Anna Wisborg, Annette Jensen, Ariel Joy Norback Wallner, Brigitta Gulyás, Claes Robert Janson, Enea Michelesio, Frederike Werner, Hsiao Rou Huang, Ioana Fartadi Scurtu, Jacob Lykkefold Aaen, Jakob Lange, Jakob Andreassen, Jakob Ohm Laursen, Jan Magasanik, Jesafa Templo, Jesper Boye Andersen, Kamilla Heskje, Katarina Mácková, Katerina Joannides, Katrine Juul, Kekoa Charlot, Kristoffer Negendahl, Lise Jessen, Lucian Racovitan, Lucian Tofan, Roberto Outumuro, Sergiu Calacean, Sofie Maj Sørensen, Spencer Hayden, Teodor Javanaud Emden, Tobias Hjortdal, Tore Banke, Xuefei Yan, Yehezkiel Wiliardy; Model: Ella Murphy, Ricardo Oliveira, Dominiq Oti
More: BIG。更多关于: BIG on gooood



































